Новости
11 Мая 2023

Вступайте в нашу группу и будьте в курсе всех новостей и вкусных предложений!

15 Февраля 2023

Кажется, зачем ломать готовый дом, дешевле его отремонтировать и перестроить. Действительно ли это так?

Посмотреть все

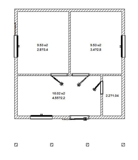
Каркасный дом 6х6 с открытой верандой, пос.Бобровский (Сысертский р-н)

Дом № 28, Бобровский (Сысертский р-н)
Площадь дома:
36м2
Размер дома:
6м х 6м
Этажность:
одноэтажный
Дополнительно:
веранда 1.5м х 6м
Срок строительства:
3 недели
Гарантия:
36 месяцев
1 350 000 р.
Купить
ОписаниеОтзывы

Комплектация Каркасного дома 6х6, одноэтажный

  • Температурный режим: круглогодичное проживание;
  • Срок строительства 3 недели;
  • Фундамент: винтовые сваи 2500/200/89/8 мм;
  • Этажность: одноэтажный;
  • Каркас стен: высота 2500 мм, толщина 150 мм; доска 50х150 мм;
  • Утеплитель: минеральная вата ТеплоKNAUF для Коттеджа 034;
  • Наружная обшивка стен: имитация бруса 135 мм сосна, сорт АБ;
  • Внутренняя обшивка стен: евровагонка сосна, сорт АВ;
  • Настил пола: плита ОСП-3 22 мм;
  • Кровля: двухскатная, профиллированный лист С-21 0.45 цвет «шоколад»;
  • Окно: 3шт — профиль REHAU 3 камерный, стеклопакет 2 камерный, подоконник, слив, откосы, обналичка, антимоскитная сетка;
  • Двери: дверь входная — сейф подъездная, межкомнатные — филенчатые;
  • Дополнительно: веранда 1,5м х 2м с кровлей.

Если Вам понравился этот дом, смело отправляйте его в корзину и мы свяжемся для обсуждения деталей. Если же хотелось бы внести некоторые изменения, это тоже легко выполнимо, ведь все наши дома - индивидуальны.

Оставляйте свои контакты, мы перезвоним, либо набирайте сами. Договоримся о встрече, обсудим проект, обязательно учтем все Ваши пожелания и впишем их в бюджет по максимуму.

Полезно также почитать:

Похожие товары
1 050 000 р.
Купить
2 390 000 р.
Купить
Остались вопросы? Мы перезвоним!
Контакты

ул.Сибирский тракт 8б оф.130
+7 (343) 201-98-59 по домам

+7 (343) 200-98-59 по балконам

 +7 (902) 874-35-34

Обратный звонок

Данный сайт использует файлы cookie и прочие похожие технологии. В том числе, мы обрабатываем Ваш IP-адрес для определения региона местоположения. Используя данный сайт, вы подтверждаете свое согласие с политикой конфиденциальности сайта.
OK