Новости
11 Мая 2023

Вступайте в нашу группу и будьте в курсе всех новостей и вкусных предложений!

15 Февраля 2023

Кажется, зачем ломать готовый дом, дешевле его отремонтировать и перестроить. Действительно ли это так?

Посмотреть все

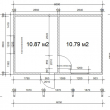
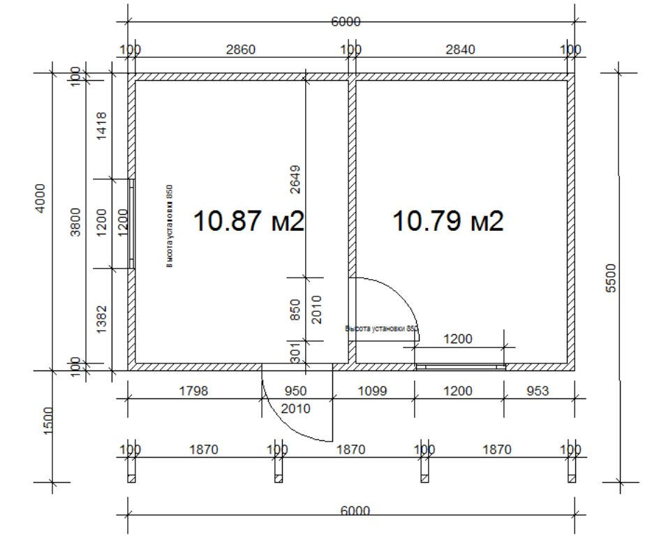
Каркасный дом 4х6м с верандой 1.5х6м под одной кровлей, СНТ Шахтер (В.Пышма)

Дом № 12, СНТ Шахтер (п. В.Пышма)
Площадь дома:
24 м2
Размер дома:
4м х 6м
Этажность:
одноэтажный
Дополнительно:
веранда 1.5м х 6м
Срок строительства:
3 недели
Гарантия:
36 месяцев
1 020 000 р.
Купить
ОписаниеОтзывы

Комплектация Каркасного дома 4х6 с верандой 1.5х6 под одной кровлей

  • Температурный режим: сезонное проживание до -15°С;
  • Срок строительства 3 недели;
  • Фундамент: винтовые сваи 2500/6/200/89 мм;
  • Этажность: одноэтажный;
  • Каркас стен: высота 2500 мм, толщина 100 мм; доска 50х100 мм;
  • Утеплитель: кплита минераловатная Knauf Insulation Aquastatik TS037;
  • Наружная обшивка стен: имитация бруса 135 мм сосна, сорт АБ;
  • Внутренняя обшивка стен: евровагонка сосна, сорт АВ;
  • Настил пола: плита ОСП 3-22 мм; доска пола, сорт АВ;
  • Кровля: двухскатная, профилированный лист с-21 0.45 цвет «зеленый мох»;
  • Окна 2шт:  профиль REHAU 3 камерный, стеклопакет 2 камерный, подоконник, слив, откосы, обналичка, антимоскитная сетка;
  • Двери: дверь входная — сейф подьездная, межкомнатная — филенчатая
  • Дополнительно: веранда 1.5 х 6 м под одной кровлей, лестница 3 ступени, демонтаж старого дома с вывозом мусора

Если Вам понравился этот дом, смело отправляйте его в корзину и мы свяжемся для обсуждения деталей. Если же хотелось бы внести некоторые изменения, это тоже легко выполнимо, ведь все наши дома - индивидуальны.

Оставляйте свои контакты, мы перезвоним, либо набирайте сами. Договоримся о встрече, обсудим проект, обязательно учтем все Ваши пожелания и впишем их в бюджет по максимуму.

Полезно также почитать:

Похожие товары
950 000 р.
Купить
1 050 000 р.
Купить
Остались вопросы? Мы перезвоним!
Контакты

ул.Сибирский тракт 8б оф.130
+7 (343) 201-98-59 по домам

+7 (343) 200-98-59 по балконам

 +7 (902) 874-35-34

Обратный звонок

Данный сайт использует файлы cookie и прочие похожие технологии. В том числе, мы обрабатываем Ваш IP-адрес для определения региона местоположения. Используя данный сайт, вы подтверждаете свое согласие с политикой конфиденциальности сайта.
OK