Новости
11 Мая 2023

Вступайте в нашу группу и будьте в курсе всех новостей и вкусных предложений!

15 Февраля 2023

Кажется, зачем ломать готовый дом, дешевле его отремонтировать и перестроить. Действительно ли это так?

Посмотреть все

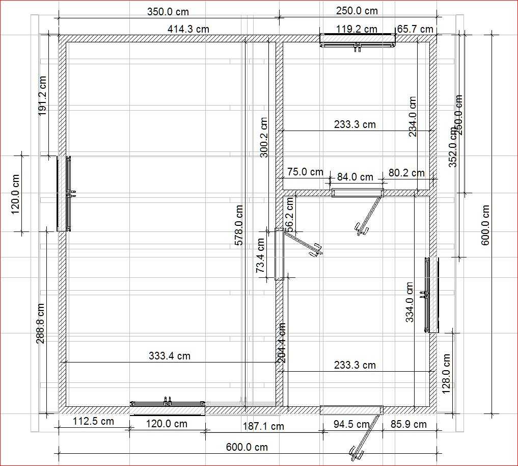
Каркасный дом 6х6 с мансардой с балконом 3.5х3, СНТ Строитель

Главная » Каталог объектов » Каркасные дома и бани » Каркасный дом 6х6 с мансардой
Дом № 36,Сад Строитель, Новомоск. тракт
Площадь дома:
54м2
Размер дома:
6м х 6м
Этажность:
с мансардным этажом
Дополнительно:
часть мансардного этажа занимает балкон 3.5м х 3м
Срок строительства:
4 недели
Гарантия:
36 месяцев
1 200 000 р.
Купить
ОписаниеОтзывы

Комплектация Каркасного дома 6х6

  • Температурный режим: круглогодичное проживание;
  • Срок строительства 2 недели;
  • Фундамент: ленточный из блока;
  • Этажность: мансардный этаж;
  • Каркас стен: высота 2500 мм, толщина 150 мм; доска 50х150 мм;
  • Утеплитель: минеральная вата ТеплоKNAUF для Коттеджа 036;
  • Наружная обшивка стен: плита ОСП-3 9 мм;
  • Внутренняя обшивка стен: плита ОСП-3 9 мм;
  • Настил пола: доска пола 28 мм;
  • Кровля: двухскатная, профилированный лист с-21 0.45 оцинкованный;
  • Окна: профиль REHAU 5 камерный, стеклопакет 2 камерный, подоконник, слив, откосы, обналичка, антимоскитная сетка;
  • Двери: дверь входная — сейф подъездная, межкомнатная — филенчатая, сосна массив;
  • Дополнительно: часть мансардного этажа занимает балкон5м х 3м

Если Вам понравился этот дом, смело отправляйте его в корзину и мы свяжемся для обсуждения деталей. Если же хотелось бы внести некоторые изменения, это тоже легко выполнимо, ведь все наши дома - индивидуальны.

Оставляйте свои контакты, мы перезвоним, либо набирайте сами. Договоримся о встрече, обсудим проект, обязательно учтем все Ваши пожелания и впишем их в бюджет по максимуму.

Полезно также почитать:

Похожие товары
Остались вопросы? Мы перезвоним!
Контакты

ул.Сибирский тракт 8б оф.130
+7 (343) 201-98-59 по домам

+7 (343) 200-98-59 по балконам

 +7 (902) 874-35-34

Обратный звонок

Данный сайт использует файлы cookie и прочие похожие технологии. В том числе, мы обрабатываем Ваш IP-адрес для определения региона местоположения. Используя данный сайт, вы подтверждаете свое согласие с политикой конфиденциальности сайта.
OK