Новости
11 Мая 2023

Вступайте в нашу группу и будьте в курсе всех новостей и вкусных предложений!

15 Февраля 2023

Кажется, зачем ломать готовый дом, дешевле его отремонтировать и перестроить. Действительно ли это так?

Посмотреть все

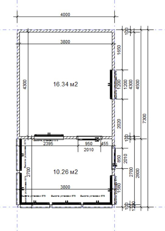
Каркасный дом 4х4.3 с остекленной верандой, г.Невьянск

Главная » Каталог объектов » Каркасные дома и бани » Каркасный дом 4х4.3 с чердаком
Дом № 3, Невьянский р-н
Площадь дома:
17 м2
Размер дома:
4м х 4.3м
Этажность:
с чердачным этажом
Дополнительно:
веранда 2.8м х 4м
Срок строительства:
3 недели
Гарантия:
36 месяцев
850 000 р.
Купить
ОписаниеОтзывы

Комплектация дома 4х4.3 с остекленной верандой и чердачным этажом

  • Температурный режим: сезонное проживание до -15°С;
  • Срок строительства 3 недели;
  • Фундамент: винтовые сваи 2500/6/200/89 мм;
  • Этажность: с чердачным этажом;
  • Каркас стен: высота 2500 мм, толщина 100 мм; доска 50х100 мм;
  • Утеплитель: каменная вата УРСА Terra 34 PN;
  • Наружная обшивка стен: ОСП 9 мм;
  • Внутренняя обшивка стен: ОСП 9 мм;
  • Настил пола: плита ОСП 3-22 мм;
  • Кровля: двухскатная, профилированный лист с-21 0.45 цвет «зеленый мох»;
  • Окна: в доме, 3шт - профиль REHAU 3 камерный, стеклопакет 2 камерный, подоконник, слив, откосы, обналичка, антимоскитная сетка; веранда - раздвижные, алюминиевый профиль белый, стекло 4мм;
  • Двери: дверь входная — сейф подьездная;
  • Дополнительно: веранда 4 х 2.8 м, чердачный этаж, водосточная система

Если Вам понравился этот дом, смело отправляйте его в корзину и мы свяжемся для обсуждения деталей. Если же хотелось бы внести некоторые изменения, это тоже легко выполнимо, ведь все наши дома - индивидуальны.

Оставляйте свои контакты, мы перезвоним, либо набирайте сами. Договоримся о встрече, обсудим проект, обязательно учтем все Ваши пожелания и впишем их в бюджет по максимуму.

Полезно также почитать:

Похожие товары
500 000 р.
Купить
980 000 р.
Купить
Остались вопросы? Мы перезвоним!
Контакты

ул.Сибирский тракт 8б оф.130
+7 (343) 201-98-59 по домам

+7 (343) 200-98-59 по балконам

 +7 (902) 874-35-34

Обратный звонок

Данный сайт использует файлы cookie и прочие похожие технологии. В том числе, мы обрабатываем Ваш IP-адрес для определения региона местоположения. Используя данный сайт, вы подтверждаете свое согласие с политикой конфиденциальности сайта.
OK