Новости
11 Мая 2023

Вступайте в нашу группу и будьте в курсе всех новостей и вкусных предложений!

15 Февраля 2023

Кажется, зачем ломать готовый дом, дешевле его отремонтировать и перестроить. Действительно ли это так?

Посмотреть все

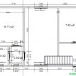
Пристрой каркасный 3х6, поселок Палкинский торфяник.

Пристрой №3 Палкинский торфяник
Площадь:
18м2
Размер дома:
3м х 6м
Этажность:
один этаж
Дополнительно:
усиление фундамента; водосточка
Срок строительства:
2 недели
Гарантия:
36 месяцев
780 000 р.
Купить
ОписаниеОтзывы

Комплектация жилого каркасного пристроя 3м х 6м

  • Для круглогодичного проживания;
  • Срок строительства 2 недели;
  • Фундамент: винтовые сваи 2500/200/89/6 мм; 8шт;
  • Первый этаж;
  • Каркас стен: высота 2500 мм; толщина 150 мм
    доска 50х200 мм;
  • Утеплитель: минеральная вата ТеплоKNAUF для Коттеджа 036;
  • Наружная обшивка стен: блокхаус 135 мм сорт АБ;
  • Внутренняя обшивка стен: евровагонка сосна, сорт АВ;
  • Настил пола: доска пола 28 мм;
  • Кровля: двухскатная, профилированный лист с-21 0.45 цвет «шоколад»;
  • Окна, 3шт: профиль REHAU 5 камерный, стеклопакет 2 камерный, подоконник, слив, откосы, обналичка, антимоскитная сетка;
  • Двери: межкомнатная — филенчатая, 3 шт;
  • Дополнительно: усиление фундамента – уголок металлический; обшивка фундамента – плоский шифер; водосточная система;
    дом ранее построила также наше компания.
Похожие товары
Остались вопросы? Мы перезвоним!
Контакты

ул.Сибирский тракт 8б оф.130
+7 (343) 201-98-59 по домам

+7 (343) 200-98-59 по балконам

 +7 (902) 874-35-34

Обратный звонок

Данный сайт использует файлы cookie и прочие похожие технологии. В том числе, мы обрабатываем Ваш IP-адрес для определения региона местоположения. Используя данный сайт, вы подтверждаете свое согласие с политикой конфиденциальности сайта.
OK