Новости
11 Мая 2023

Вступайте в нашу группу и будьте в курсе всех новостей и вкусных предложений!

15 Февраля 2023

Кажется, зачем ломать готовый дом, дешевле его отремонтировать и перестроить. Действительно ли это так?

Посмотреть все

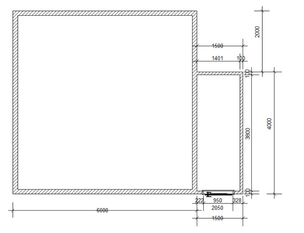
Пристрой каркасный 1.5м х 4м с крыльцом, СНТ Уралец

Пристрой №6, СНТ Уралец
Площадь:
6м2
Размер пристроя:
1.5м х 4м
Этажность:
одноэтажный
Дополнительно:
крыльцо из 3х ступеней
Срок строительства:
2 недели
Гарантия:
36 месяцев
193 000 р.
Купить
ОписаниеОтзывы

Комплектация Каркасного пристроя 1.5х4м с крыльцом

  • Для сезонного проживания;
  • Срок строительства 2 недели;
  • Фундамент: блоки полистирол-цементные М 400, 200 х 300 х 600 мм, отсыпка щебнем;
  • Одноэтажный;
  • Каркас стен: высота 2300мм, толщина 100 мм, доска 50х100 мм;
  • Утеплитель: -
  • Наружная обшивка стен: имитация бруса 135 мм сосна, сорт АБ;
  • Внутренняя обшивка стен: -
  • Настил пола: доска террасная/палубная 34мм, хвоя, сорт АВ;
  • Кровля: односкатная, металлочерепица Мотеррей 0.45 цвет «темная вишня»;
  • Окна: -
  • Двери: межкомнатная филенчатая, сосна массив;
  • Дополнительно: крыльцо из 4х ступеней
Похожие товары
Остались вопросы? Мы перезвоним!
Контакты

ул.Сибирский тракт 8б оф.130
+7 (343) 201-98-59 по домам

+7 (343) 200-98-59 по балконам

 +7 (902) 874-35-34

Обратный звонок

Данный сайт использует файлы cookie и прочие похожие технологии. В том числе, мы обрабатываем Ваш IP-адрес для определения региона местоположения. Используя данный сайт, вы подтверждаете свое согласие с политикой конфиденциальности сайта.
OK