Новости
11 Мая 2023

Вступайте в нашу группу и будьте в курсе всех новостей и вкусных предложений!

15 Февраля 2023

Кажется, зачем ломать готовый дом, дешевле его отремонтировать и перестроить. Действительно ли это так?

Посмотреть все

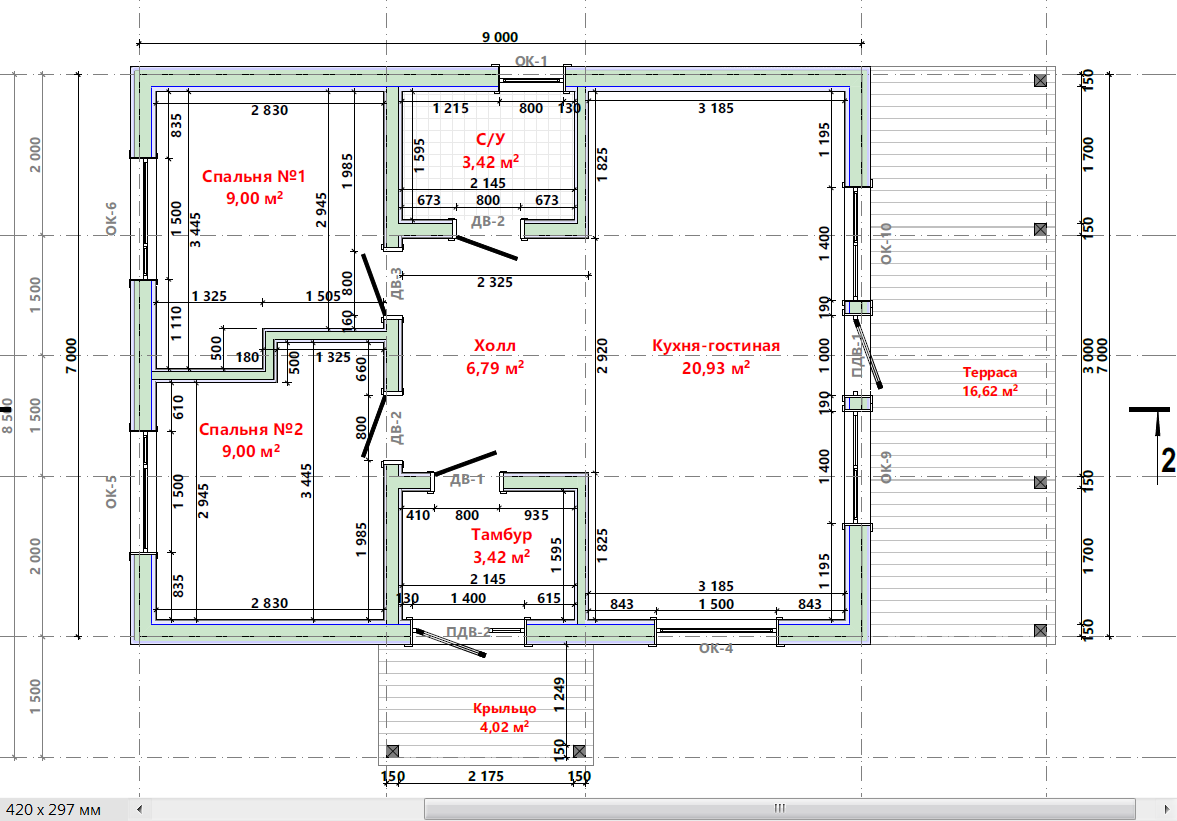
Каркасный дом 7х9 с верандой 2.5х7м и крыльцом 1.5х2.5м

Главная » Каталог объектов » Каркасные дома и бани » Каркасный дом 7х9 с верандой
Дом № 1, СНТ Горняк (Чусовской тракт)
Площадь дома:
63м2
Размер дома:
7 х 9м
Этажность:
одноэтажный
Дополнительно:
веранда 2.5м х 7м; крыльцо 1.5м х 2.5м; второй свет, обшивка металлосайднгом
Срок строительства:
6 недель
Гарантия:
36 месяцев
2 750 000 р.
Купить
ОписаниеОтзывы

Комплектация каркасного дома 7 х 9 м с верандой 2.5 х 7 м и крыльцом 1.5 х 2.5 м

  • Температурный режим: круглогодичное проживание;
  • Срок строительства 6 недель;
  • Фундамент: винтовые сваи 2500/200/89/6 мм, 16шт;
  • Этажность: однотажный;
  • Каркас стен: высота 2500 мм, толщина 200 мм; доска 50х200 мм (оба этажа);
  • Утеплитель: плита минераловатная тепло- и звукоизоляционная KnaufInsulation TS 036 Aquastatik;
  • Наружная обшивка стен: металлосайдинг брус "Короед" 0.50 цвет «зеленый мох» ral 6005;
  • Внутренняя обшивка стен: евровагонка сосна, сорт АВ;
  • Настил пола: плита ОСП-3 22 мм;
  • Кровля: двухскатная металлочерепица Мотеррей 0.50 цвет «серый графит» ral 7024;
  • Окна: профиль REHAU 5 камерный ламинация снаружи "серый графит", стеклопакет 2 камерный, подоконник, откосы, сливы и обналичка "серый графит", антимоскитные сетки в цвет;
  • Двери: профиль REHAU 5 камерный ламинация снаружи "серый графит", стеклопакет 2 камерный;
  • Дополнительно: веранда 2.5м х 7м, крыльцо 1.5м х 2.5м с кровлей

Если Вам понравился этот дом, смело отправляйте его в корзину и мы свяжемся для обсуждения деталей. Если же хотелось бы внести некоторые изменения, это тоже легко выполнимо, ведь все наши дома - индивидуальны.

Оставляйте свои контакты, мы перезвоним, либо набирайте сами. Договоримся о встрече, обсудим проект, обязательно учтем все Ваши пожелания и впишем их в бюджет по максимуму.

Полезно также почитать:

Похожие товары
Остались вопросы? Мы перезвоним!
Контакты

ул.Сибирский тракт 8б оф.130
+7 (343) 201-98-59 по домам

+7 (343) 200-98-59 по балконам

 +7 (902) 874-35-34

Обратный звонок

Данный сайт использует файлы cookie и прочие похожие технологии. В том числе, мы обрабатываем Ваш IP-адрес для определения региона местоположения. Используя данный сайт, вы подтверждаете свое согласие с политикой конфиденциальности сайта.
OK