Новости
11 Мая 2023

Вступайте в нашу группу и будьте в курсе всех новостей и вкусных предложений!

15 Февраля 2023

Кажется, зачем ломать готовый дом, дешевле его отремонтировать и перестроить. Действительно ли это так?

Посмотреть все

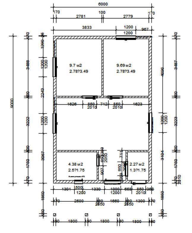
Каркасный дом 6х9м с вернадой 2.5х6м, СНТ Медик-1

Главная » Каталог объектов » Каркасные дома и бани » Каркасный дом 6х9 с верандой
Дом № 52, СНТ Медик-1
Площадь дома:
54м2
Размер дома:
6м х 9м
Этажность:
одноэтажный
Дополнительно:
веранда 2.5м х 6м, огнебиозащита
Срок строительства:
4 недели
Гарантия:
36 месяцев
2 050 000 р.
Купить
ОписаниеОтзывы

Комплектация Каркасного дома 6х9м с верандой 2.5х6м 

  • Температурный режим: круглогодичное проживание;
  • Срок строительства 4 недели;
  • Фундамент: предоставлен заказчиком, только утепление; под веранду - сваи 2500/6/200/89 мм;
  • Этажность: одноэтажный;
  • Каркас стен: высота 2500 мм, толщина 200 мм; доска 50х200 мм;
  • Утеплитель: плита минераловатная Knauf Insulation Aquastatik TS037;
  • Наружная обшивка стен: плита ЦСП, 12 мм;
  • Внутренняя обшивка стен: лист ГКЛ влагостойкий, 12мм;
  • Настил пола: фанера 20 мм;
  • Кровля: двухскатная, металлочерепица Мотеррей 0.45 цвет «шоколад»;
  • Окна 7шт:  профиль REHAU 5-камерный, стеклопакет 2 камерный с раскладкой, слив, шумоизоляция, откосы, антимоскитная сетка;
  • Двери: дверь входная — сейф подьездная (заказчика); межкомнатные - филенчатые
  • Дополнительно: веранда 2.5х6м, огнезащитная обработка пиломатериала стропильной системы. Материал заказчика.

Если Вам понравился этот дом, смело отправляйте его в корзину и мы свяжемся для обсуждения деталей. Если же хотелось бы внести некоторые изменения, это тоже легко выполнимо, ведь все наши дома - индивидуальны.

Оставляйте свои контакты, мы перезвоним, либо набирайте сами. Договоримся о встрече, обсудим проект, обязательно учтем все Ваши пожелания и впишем их в бюджет по максимуму.

Полезно также почитать:

Похожие товары
Остались вопросы? Мы перезвоним!
Контакты

ул.Сибирский тракт 8б оф.130
+7 (343) 201-98-59 по домам

+7 (343) 200-98-59 по балконам

 +7 (902) 874-35-34

Обратный звонок

Данный сайт использует файлы cookie и прочие похожие технологии. В том числе, мы обрабатываем Ваш IP-адрес для определения региона местоположения. Используя данный сайт, вы подтверждаете свое согласие с политикой конфиденциальности сайта.
OK