Новости
Посмотреть все
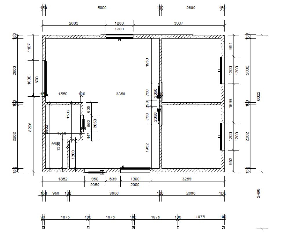
Каркасный дом 6х8 с верандой, направление г.Горный щит
Комплектация Каркасного дома 6х8м с верандой 2.5х8м
- Температурный режим: круглогодичное проживание;
- Срок строительства 4 недели;
- Фундамент: винтовые сваи 2500/6/200/89 мм;
- Этажность: одноэтажный;
- Каркас стен: высота 2500 мм, толщина 150 мм; доска 50х150 мм;
- Утеплитель: плита минераловатная Knauf Insulation Aquastatik TS037;
- Наружная обшивка стен: имитация бруса 135 мм сосна, сорт АБ;
- Внутренняя обшивка стен: евровагонка сосна, сорт АВ;
- Настил пола: плита ОСП 3-22 мм; доска пола, сорт АВ;
- Кровля: двухскатная, двухуровневая, профиллированный лист С-21 0.45 цвет «шоколад»;
- Окна 5шт, цвет графит: профиль REHAU 3-камерный, стеклопакет 2 камерный, подоконник, слив, откосы, обналичка, антимоскитная сетка;
- Двери: дверь входная — сейф подьездная; межкомнатные - филенчатые
- Дополнительно: веранда 2.5х8м
Если Вам понравился этот дом, смело отправляйте его в корзину и мы свяжемся для обсуждения деталей. Если же хотелось бы внести некоторые изменения, это тоже легко выполнимо, ведь все наши дома - индивидуальны.
Оставляйте свои контакты, мы перезвоним, либо набирайте сами. Договоримся о встрече, обсудим проект, обязательно учтем все Ваши пожелания и впишем их в бюджет по максимуму.
Полезно также почитать:
Заголовок объявления
Семейная ипотека на строительство дома. Ставка от 6%. Помощь в подборе участка. Екатеринбург
Строительство частных домов под ключ. Помощь в подборе участка. Индивидуальные проекты. Екатеринбург
Семейная ипотека на строительство дома. Ставка от 6%. Помощь в подборе участка. Екатеринбург
Семейная ипотека на строительство дома. Ставка от 6%. Помощь в подборе участка. Екатеринбург
Проектирование и строительство частных домов под ключ. Помощь в подборе участка. Екатеринбург
Проектирование и строительство коттеджей под ключ. Помощь в подборе участка. Екатеринбург
Проектирование и строительство частных домов под ключ. Помощь в подборе участка. Екатеринбург
Строительство домов по вашему эскизу. Под ключ! Помощь в подборе участка. Екатеринбург
Семейная ипотека на строительство дома. Ставка от 6%. Помощь в подборе участка. Екатеринбург
Проектирование и строительство частных домов под ключ. Помощь в подборе участка. Екатеринбург
Строительство каркасных домов в Свердловской области. Помощь в подборе участка. Екатеринбург
Строительство домов по вашему эскизу. Под ключ! Помощь в подборе участка. Екатеринбург
Купить дом под семейную ипотеку с эскроу, ставка от 6%. Помощь в подборе участка. Екатеринбург
Купить дом под сельскую ипотеку со ставкой от 3%. Екатеринбург
Купить дом под семейную ипотеку с эскроу, ставка от 6%. Помощь в подборе участка. Екатеринбург
Семейная ипотека на строительство дома. Ставка от 6%. Помощь в подборе участка. Екатеринбург
Барнхаусы под ключ в Свердловской области. Екатеринбург
Проектирование и строительство частных домов под ключ. Помощь в подборе участка. Екатеринбург
Строительство домов по вашему эскизу. Под ключ! Помощь в подборе участка. Екатеринбург
Проектирование и строительство частных домов под ключ. Помощь в подборе участка. Екатеринбург
Строительство домов по вашему эскизу. Под ключ! Помощь в подборе участка. Екатеринбург
Проектирование и строительство частных домов под ключ. Помощь в подборе участка. Екатеринбург
Строительство частных домов под ключ. Помощь в подборе участка. Индивидуальные проекты. Екатеринбург
Строительство домов под ключ в Свердловской области. Помощь в подборе участка. Екатеринбург
Проектирование и строительство домов из газоблока. Екатеринбург
Закажите частный дом под ключ! Расчёт цен на сайте. С доставкой на участок. Екатеринбург
Семейная ипотека на строительство дома. Ставка от 6%. Помощь в подборе участка. Екатеринбург
Строительство домов под семейную ипотеку. До 6 млн. Помощь в подборе участка. Екатеринбург
Семейная ипотека на строительство дома. Ставка от 6%. Помощь в подборе участка. Екатеринбург
Строительство частных домов под ключ. Екатеринбург
Проектирование и строительство каркасных домов под ключ. Помощь в подборе участка. Екатеринбург
Строительство каркасных домов под ключ от 2,5 млн руб. Помощь в подборе участка. Екатеринбург
Строительство домов под ключ в Свердловской области. Екатеринбург
Проектирование и строительство частных домов под ключ. Помощь в подборе участка. Екатеринбург
Строительство домов по вашему эскизу. Под ключ! Помощь в подборе участка. Екатеринбург
Скидка от 50% до 100% на доставку! Бани
Проектирование и строительство частных домов под ключ. Помощь в подборе участка. Екатеринбург
Построим частный дом под ключ. Цены на любой бюджет! С доставкой на участок. Екатеринбург
Строительство домов из газоблока в Свердловской области. Екатеринбург
Дома из газоблока под ключ в Свердловской области. Екатеринбург
Закажите частный дом под ключ! Расчёт цен на сайте. С доставкой на участок. Екатеринбург
Строительство домов под ключ в Екб и СО. Цены на любой бюджет! С доставкой на участок. Екатеринбург
Барнхаусы под ключ в Свердловской области. Екатеринбург
Строительство барнхаусов под ключ от 2 млн руб. Екатеринбург
Строительство домов по вашему эскизу. Под ключ! Екатеринбург
Проектирование и строительство частных домов под ключ. Помощь в подборе участка. Екатеринбург
Строительство домов по вашему эскизу. Под ключ! Помощь в подборе участка. Екатеринбург
Купить барнхаус под ключ от 2 000 000 рублей. Екатеринбург
Построим частный дом под ключ. Цены на любой бюджет! С доставкой на участок. Екатеринбург
Купить барнхаус под ключ от 2 000 000 рублей. Екатеринбург
Строительство коттеджей под ключ. Фиксация сметы! Помощь в подборе участка. Екатеринбург
Проектирование и строительство коттеджей под ключ. Помощь в подборе участка. Екатеринбург
Проектирование и строительство частных домов под ключ. Помощь в подборе участка. Екатеринбург
Скидка от 50% до 100% на доставку! Бани
Строительство частных домов под ключ. Помощь в подборе участка. Индивидуальные проекты. Екатеринбург
Строительство домов по вашему эскизу. Под ключ! Помощь в подборе участка. Екатеринбург
Проектирование и строительство частных домов под ключ. Екатеринбург
Строительство каркасных бань «под ключ». Собственное производство. Индивидуальные проекты. Екатеринбург
Купить каркасную баню от 430 000 рублей «под ключ». Собственное производство. Екатеринбург
Строительство домов по вашему эскизу. Под ключ! Помощь в подборе участка. Екатеринбург
Строительство домов под ключ в Свердловской области. Помощь в подборе участка. Екатеринбург
Строительство частных домов под ключ. Екатеринбург
Барнхаусы под ключ в Свердловской области. Екатеринбург
Барнхаусы под ключ в Свердловской области. Екатеринбург
Купить барнхаус под ключ от 2 000 000 рублей. Екатеринбург
Строительство домов под ключ в Свердловской области. Екатеринбург
Строительство домов под ключ в Свердловской области. Екатеринбург
Строительство домов по вашему эскизу. Под ключ! Помощь в подборе участка. Екатеринбург
Проектирование и строительство частных домов под ключ. Помощь в подборе участка. Екатеринбург
Строительство частных домов под ключ. Помощь в подборе участка. Индивидуальные проекты. Екатеринбург
Дома из газоблока под ключ в Свердловской области. Екатеринбург
Проектирование и строительство частных домов под ключ. Помощь в подборе участка. Екатеринбург
Проектирование и строительство частных домов под ключ. Помощь в подборе участка. Екатеринбург
Строительство домов под ключ в Свердловской области. Помощь в подборе участка. Екатеринбург
Строительство индивидуальных жилых домов. Под ключ! Помощь в подборе участка. Екатеринбург
Строительство домов под ключ в Свердловской области. Помощь в подборе участка. Екатеринбург
Строительство домов по вашему эскизу. Под ключ! Помощь в подборе участка. Екатеринбург
Проектирование и строительство частных домов под ключ. Помощь в подборе участка. Екатеринбург
Септик в подарок! Евролос ЭКО 3
Проектирование и строительство частных домов под ключ. Екатеринбург
Барнхаусы под ключ в Свердловской области. Екатеринбург
Строительство частных домов в Каменск-Уральске. Помощь в подборе участка. Екатеринбург
Строительство домов по вашему эскизу. Под ключ! Помощь в подборе участка. Екатеринбург
Строительство частных домов под ключ. Помощь в подборе участка. Индивидуальные проекты. Екатеринбург
Строительство домов по вашему эскизу. Под ключ! Помощь в подборе участка. Екатеринбург
Барнхаусы под ключ в Свердловской области. Екатеринбург
Закажите частный дом под ключ! Расчёт цен на сайте. С доставкой на участок. Екатеринбург
Построим частный дом под ключ. Цены на любой бюджет! С доставкой на участок. Екатеринбург
Строим дома из каталога и по эскизу. Можно в ипотеку. Сотрудничаем с ДомРФ. Екатеринбург
Барнхаусы под ключ в Свердловской области. Екатеринбург
Строительство домов под ключ в Свердловской области. Помощь в подборе участка. Екатеринбург
Проектирование и строительство частных домов под ключ. Помощь в подборе участка. Екатеринбург
Построим частный дом под ключ. Цены на любой бюджет! С доставкой на участок. Екатеринбург
Проектирование и строительство частных домов под ключ. Помощь в подборе участка. Екатеринбург
Строительство домов под ключ в Свердловской области. Екатеринбург
Строительство домов из газоблока под ключ 3,5 млн руб. Помощь в подборе участка. Екатеринбург
Строительство частных домов под ключ. Помощь в подборе участка. Индивидуальные проекты. Екатеринбург
Строительство дачных домов под ключ. Помощь в подборе участка. Индивидуальные проекты. Екатеринбург
Строительство дачных домов под ключ. Фиксация сметы! Помощь в подборе участка. Екатеринбург
Строительство каркасных домов под ключ от 2,5 млн руб. Помощь в подборе участка. Екатеринбург
Строительство каркасных домов в Свердловской области. Помощь в подборе участка. Екатеринбург
Строительство дачных домов под ключ. Фиксация сметы! Помощь в подборе участка. Екатеринбург
Строительство дачных домов под ключ. Помощь в подборе участка. Индивидуальные проекты. Екатеринбург
Строительство домов под ключ в Свердловской области. Помощь в подборе участка. Екатеринбург
Проектирование и строительство частных домов под ключ. Помощь в подборе участка. Екатеринбург
Строительство садовых домов под ключ. Фиксация сметы! Помощь в подборе участка. Екатеринбург
Строительство жилого дома под ИЖС в Свердловской области. Помощь в подборе участка. Екатеринбург
Проектирование и строительство садовых домов под ключ. Помощь в подборе участка. Екатеринбург
Строительство домов из газоблока в Свердловской области. Помощь в подборе участка. Екатеринбург
Проектирование и строительство домов из газоблока. Помощь в подборе участка. Екатеринбург
Проектирование и строительство частных домов под ключ. Помощь в подборе участка. Екатеринбург
Строительство каркасных домов в ЕКБ под ключ. От производителя за 60 дней. СП 31-105-2002. Екатеринбург
Проектирование и строительство садовых домов под ключ. Помощь в подборе участка. Екатеринбург
Проектирование и строительство частных домов под ключ. Помощь в подборе участка. Екатеринбург
Строительство домов под ключ в Свердловской области. Помощь в подборе участка. Екатеринбург
Проектирование и строительство частных домов под ключ. Помощь в подборе участка. Екатеринбург
Проектирование и строительство садовых домов под ключ. Помощь в подборе участка. Екатеринбург
Барнхаусы под ключ в Свердловской области. Екатеринбург
Закажите частный дом под ключ! Расчёт цен на сайте. С доставкой на участок. Екатеринбург
Построим частный дом под ключ. Цены на любой бюджет! С доставкой на участок. Екатеринбург
Построим частный дом под ключ. Цены на любой бюджет! С доставкой на участок. Екатеринбург
Закажите частный дом под ключ! Расчёт цен на сайте. С доставкой на участок. Екатеринбург
Проектирование и строительство барнхаусов под ключ. Помощь в подборе участка. Екатеринбург
Дома из газоблока под ключ в Свердловской области. Екатеринбург
Строительство домов по вашему эскизу. Под ключ! Екатеринбург
Купить дом под сельскую ипотеку со ставкой от 3%. Екатеринбург
Барнхаусы под ключ в Свердловской области. Екатеринбург
Проектирование и строительство частных домов под ключ. Екатеринбург
Строительство частных домов под ключ. Помощь в подборе участка. Индивидуальные проекты. Екатеринбург
Строительство частных домов под ключ. Помощь в подборе участка. Индивидуальные проекты. Екатеринбург
Строительство частных домов в Свердловской области. Помощь в подборе участка. Екатеринбург
Строительство домов под ключ в Свердловской области. Помощь в подборе участка. Екатеринбург
Каркасная баня "КБ-35
Строим и доставляем бани в беспроцентную рассрочку. Екатеринбург
Мобильная баня «Весна-6»
Строительство домов по вашему эскизу. Под ключ! Помощь в подборе участка. Екатеринбург
Строительство домов под ключ в Свердловской области. Помощь в подборе участка. Екатеринбург
Построим дом или дачу под ключ. Цены на любой бюджет. С доставкой на участок. Екатеринбург
Закажите дом или дачу под ключ! Цены на любой бюджет. С доставкой на участок. Екатеринбург
Строительство барнхаусов под ключ от 2 млн руб. Екатеринбург
Проектирование и строительство частных домов под ключ. Екатеринбург
Строительство домов под ключ в Свердловской области. Екатеринбург
Строительство домов под ключ в Свердловской области. Екатеринбург
Баня деревянная 5х6
Проектирование и строительство частных домов под ключ. Помощь в подборе участка. Екатеринбург
Каркасный дом ДК-135
Баня из бревна 6х6
Проектирование и строительство частных домов под ключ. Помощь в подборе участка. Екатеринбург
Проектирование и строительство частных домов под ключ. Помощь в подборе участка. Екатеринбург
Строительство садовых домов под ключ. Фиксация сметы! Помощь в подборе участка. Екатеринбург
Проектирование и строительство садовых домов под ключ. Помощь в подборе участка. Екатеринбург
Строительство домов из газоблока под ключ 3,5 млн руб. Помощь в подборе участка. Екатеринбург
Строительство домов по вашему эскизу. Под ключ! Помощь в подборе участка. Екатеринбург
Строительство домов под ключ в Свердловской области. Екатеринбург
Проектирование и строительство частных домов под ключ. Екатеринбург
Строительство домов под ключ в Свердловской области. Екатеринбург
Строительство барнхаусов под ключ от 2 млн руб. Екатеринбург
Проектирование и строительство каркасных домов под ключ. Помощь в подборе участка. Екатеринбург
Строительство домов под ключ в Свердловской области. Помощь в подборе участка. Екатеринбург
Строительство домов под ключ в Свердловской области. Екатеринбург
Строительство барнхаусов под ключ от 2 млн руб. Помощь в подборе участка. Екатеринбург
Барнхаусы под ключ в Свердловской области. Екатеринбург
Купить барнхаус под ключ от 2 000 000 рублей. Екатеринбург
Дома из газоблока под ключ в Свердловской области. Екатеринбург
Строительство домов под ключ в Свердловской области. Екатеринбург
Коттеджи, дома и дачи в Екб и СО. Строим быстро - за 2 мес. С доставкой на участок. Екатеринбург
Закажите частный дом под ключ! Расчёт цен на сайте. С доставкой на участок. Екатеринбург
Построим частный дом под ключ. Цены на любой бюджет! С доставкой на участок. Екатеринбург
Семейная ипотека на строительство дома. Ставка от 6%. Помощь в подборе участка. Екатеринбург
Проектирование и строительство частных домов под ключ. Екатеринбург
Закажите частный дом под ключ! Расчёт цен на сайте. С доставкой на участок. Екатеринбург
Построим частный дом под ключ. Цены на любой бюджет! С доставкой на участок. Екатеринбург
Дом из газобетона ГБ-110
Закажите частный дом под ключ! Расчёт цен на сайте. С доставкой на участок. Екатеринбург
Построим частный дом под ключ. Цены на любой бюджет! С доставкой на участок. Екатеринбург
Проектирование и строительство частных домов под ключ. Помощь в подборе участка. Екатеринбург
Строительство частных домов под ключ. Помощь в подборе участка. Индивидуальные проекты. Екатеринбург
Строительство домов под ключ в Свердловской области. Помощь в подборе участка. Екатеринбург
Строительство садовых домов под ключ. Фиксация сметы! Помощь в подборе участка. Екатеринбург
Строительство дачных домов под ключ. Фиксация сметы! Помощь в подборе участка. Екатеринбург
Строительство домов под ключ в Свердловской области. Помощь в подборе участка. Екатеринбург
Строительство дачных домов под ключ. Помощь в подборе участка. Индивидуальные проекты. Екатеринбург
Закажите частный дом под ключ! Расчёт цен на сайте. С доставкой на участок. Екатеринбург
Закажите частный дом под ключ! Расчёт цен на сайте. С доставкой на участок. Екатеринбург
Построим частный дом под ключ. Цены на любой бюджет! С доставкой на участок. Екатеринбург
Построим частный дом под ключ. Цены на любой бюджет! С доставкой на участок. Екатеринбург
Большой выбор недорогих домов. Строим в Екб и Области. С доставкой на участок. Екатеринбург
Закажите частный дом под ключ! Расчёт цен на сайте. С доставкой на участок. Екатеринбург
Дома для постоянного проживания. Цены на любой бюджет. С доставкой на участок. Екатеринбург
Строительство домов под семейную ипотеку. До 6 млн. Помощь в подборе участка. Екатеринбург
Семейная ипотека на строительство дома. Ставка от 6%. Помощь в подборе участка. Екатеринбург
Построим частный дом под ключ. Цены на любой бюджет! С доставкой на участок. Екатеринбург
Построим частный дом под ключ. Цены на любой бюджет! С доставкой на участок. Екатеринбург
Закажите частный дом под ключ! Расчёт цен на сайте. С доставкой на участок. Екатеринбург
Закажите частный дом под ключ! Расчёт цен на сайте. С доставкой на участок. Екатеринбург
Строительство домов под ключ в Свердловской области. Екатеринбург
Построим частный дом под ключ. Цены на любой бюджет! С доставкой на участок. Екатеринбург
Строим дома из каталога и по эскизу. Можно в ипотеку. Сотрудничаем с ДомРФ. Екатеринбург
Большой выбор недорогих домов. Строим в Екб и Области. С доставкой на участок. Екатеринбург
Строительство частных домов под ключ. Екатеринбург
Строительство домов по вашему эскизу. Под ключ! Помощь в подборе участка. Екатеринбург
Проектирование и строительство частных домов под ключ. Помощь в подборе участка. Екатеринбург
Строительство частных домов под ключ. Помощь в подборе участка. Индивидуальные проекты. Екатеринбург
Построим частный дом под ключ. Цены на любой бюджет! С доставкой на участок. Екатеринбург
Построим частный дом под ключ. Цены на любой бюджет! С доставкой на участок. Екатеринбург
Закажите частный дом под ключ! Расчёт цен на сайте. С доставкой на участок. Екатеринбург
Разработка проектов домов. Проект от нас в подарок! С доставкой на участок. Екатеринбург
Строительство барнхаусов в Свердловской области. Екатеринбург
Закажите частный дом под ключ! Расчёт цен на сайте. С доставкой на участок. Екатеринбург
Построим частный дом под ключ. Цены на любой бюджет! С доставкой на участок. Екатеринбург
Барнхаусы под ключ в Свердловской области. Екатеринбург
Купить барнхаус под ключ от 2 000 000 рублей. Екатеринбург
Закажите частный дом под ключ! Расчёт цен на сайте. С доставкой на участок. Екатеринбург
Дома из газоблока под ключ в Свердловской области. Екатеринбург
Строительство домов по эскизу в Свердловской области. Екатеринбург
Закажите частный дом под ключ! Расчёт цен на сайте. С доставкой на участок. Екатеринбург
Построим частный дом под ключ. Цены на любой бюджет! С доставкой на участок. Екатеринбург
Строительство частных домов под ключ. Екатеринбург
Строительство частных домов под ключ. Екатеринбург
Построим частный дом под ключ. Цены на любой бюджет! С доставкой на участок. Екатеринбург
Закажите частный дом под ключ! Расчёт цен на сайте. С доставкой на участок. Екатеринбург
Построим частный дом под ключ. Цены на любой бюджет! С доставкой на участок. Екатеринбург
Проект и монтаж дома под ключ! Цены на любой бюджет. С доставкой на участок. Екатеринбург
Проектирование и строительство частных домов под ключ. Помощь в подборе участка. Екатеринбург
Закажите частный дом под ключ! Расчёт цен на сайте. С доставкой на участок. Екатеринбург
Построим частный дом под ключ. Цены на любой бюджет! С доставкой на участок. Екатеринбург
Проектирование и строительство частных домов под ключ. Екатеринбург
Строительство домов под ключ в Свердловской области. Екатеринбург
Каркасный дом ДК-88 (Копировать)
Строительство домов по вашему эскизу. Под ключ! Помощь в подборе участка. Екатеринбург
Проектирование и строительство частных домов под ключ. Помощь в подборе участка. Екатеринбург
Семейная ипотека на строительство дома. Ставка от 6%. Помощь в подборе участка. Екатеринбург
Строительство частных домов под ключ. Помощь в подборе участка. Индивидуальные проекты. Екатеринбург
Строительство частных домов под ключ. Екатеринбург
Закажите частный дом под ключ! Расчёт цен на сайте. С доставкой на участок. Екатеринбург
Построим частный дом под ключ. Цены на любой бюджет! С доставкой на участок. Екатеринбург
Дом из газобетона ГБ-156
Скидка от 50% до 100% на доставку! Бани
Квадро - бани 2,2х2,2 м, сосна, гибкая черепица, Екб
Строительство домов из газоблока под ключ 3,5 млн руб. Помощь в подборе участка. Екатеринбург
Строительство домов из газоблока в Свердловской области. Помощь в подборе участка. Екатеринбург
Построим и доставим баню в ваш город этой зимой. Екатеринбург
Купить дом под сельскую ипотеку со ставкой от 3%. Екатеринбург
Строительство домов под семейную ипотеку. Взнос от 20%. Помощь в подборе участка. Екатеринбург
Купить дом под семейную ипотеку с эскроу, ставка от 6%. Помощь в подборе участка. Екатеринбург
Проектирование и строительство частных домов под ключ. Помощь в подборе участка. Екатеринбург
Строительство дачных домов под ключ. Помощь в подборе участка. Индивидуальные проекты. Екатеринбург
Строительство частных домов под ключ. Помощь в подборе участка. Индивидуальные проекты. Екатеринбург
Строительство дачных домов под ключ. Фиксация сметы! Помощь в подборе участка. Екатеринбург
Закажите частный дом под ключ! Расчёт цен на сайте. С доставкой на участок. Екатеринбург
Мобильная баня «Весна-6»
Проектирование и строительство частных домов под ключ. Помощь в подборе участка. Екатеринбург
Купить дом под сельскую ипотеку со ставкой от 3%. Екатеринбург
Построим частный дом под ключ. Цены на любой бюджет! С доставкой на участок. Екатеринбург
Проектирование и строительство коттеджей под ключ. Помощь в подборе участка. Екатеринбург
Строительство коттеджей под ключ. Помощь в подборе участка. Индивидуальные проекты. Екатеринбург
Строительство домов по вашему эскизу. Под ключ! Помощь в подборе участка. Екатеринбург
Дома для постоянного проживания. Цены на любой бюджет. С доставкой на участок. Екатеринбург
Проектирование и строительство каркасных домов под ключ. Помощь в подборе участка. Екатеринбург
Строительство каркасных домов под ключ от 2,5 млн руб. Помощь в подборе участка. Екатеринбург
Проектирование и строительство домов из газоблока. Помощь в подборе участка. Екатеринбург
Строительство домов из газоблока в Свердловской области. Помощь в подборе участка. Екатеринбург
Построим и доставим баню-бочку этой зимой. Екатеринбург
Проектирование и строительство частных домов под ключ. Помощь в подборе участка. Екатеринбург
Баня «Теплодина-5 с верандой»
Строительство частных домов под ключ. Помощь в подборе участка. Индивидуальные проекты. Екатеринбург
Мобильная баня «Теплодина-4»
Каркасные дома под ключ в ЕКБ. От производителя за 60 дней. СП 31-105-2002. Рассрочка 0%. Екатеринбург
Купить дом под сельскую ипотеку со ставкой от 3%. Екатеринбург
Проектирование домов под ключ. Расчёт цен на сайте! С доставкой на участок. Екатеринбург
Построим частный дом под ключ. Цены на любой бюджет! С доставкой на участок. Екатеринбург
Закажите частный дом под ключ! Расчёт цен на сайте. С доставкой на участок. Екатеринбург
Закажите частный дом под ключ! Расчёт цен на сайте. С доставкой на участок. Екатеринбург
Построим частный дом под ключ. Цены на любой бюджет! С доставкой на участок. Екатеринбург
Купить дом под сельскую ипотеку со ставкой от 3%. Екатеринбург
Строим и доставляем бани в беспроцентную рассрочку. Екатеринбург
Построим частный дом под ключ. Цены на любой бюджет! С доставкой на участок. Екатеринбург
Закажите частный дом под ключ! Расчёт цен на сайте. С доставкой на участок. Екатеринбург
Строительство домов в Екб и СО. В ипотеку или рассрочку. Сотрудничаем с ДомРФ. Екатеринбург
Строительство домов по вашему эскизу. Под ключ! Помощь в подборе участка. Екатеринбург
Строительство барнхаусов под ключ от 2 млн руб. Екатеринбург
Проектирование и строительство частных домов под ключ. Помощь в подборе участка. Екатеринбург
Барнхаусы под ключ в Свердловской области. Екатеринбург
Проект и монтаж дома под ключ! Цены на любой бюджет. С доставкой на участок. Екатеринбург
Разработка проектов домов. Проект от нас в подарок! С доставкой на участок. Екатеринбург
Построим дом недорого и под ключ! В Екб и Области. С доставкой на участок. Екатеринбург
Закажите частный дом под ключ! Расчёт цен на сайте. С доставкой на участок. Екатеринбург
Бани под ключ от производителя. Поэтапная оплата. Индивидуальный проект. Екатеринбург
Построим частный дом под ключ. Цены на любой бюджет! С доставкой на участок. Екатеринбург
Проект и монтаж дома под ключ! Цены на любой бюджет. С доставкой на участок. Екатеринбург
Строительство домов под ключ в Екб и СО. Итоговые цены на сайте! С доставкой на участок. Екатеринбург
Закажите частный дом под ключ! Расчёт цен на сайте. С доставкой на участок. Екатеринбург
Построим частный дом под ключ. Цены на любой бюджет! С доставкой на участок. Екатеринбург
Строительство домов под ключ в Екб и СО. Цены на любой бюджет! С доставкой на участок. Екатеринбург
Большой выбор недорогих домов. Строим в Екб и Области. С доставкой на участок. Екатеринбург
Семейная ипотека на строительство дома. Ставка от 6%. Помощь в подборе участка. Екатеринбург
Строительство частных домов под ключ. Помощь в подборе участка. Индивидуальные проекты. Екатеринбург
Семейная ипотека на строительство дома. Ставка от 6%. Помощь в подборе участка. Екатеринбург
Семейная ипотека на строительство дома. Ставка от 6%. Помощь в подборе участка. Екатеринбург
Проектирование и строительство частных домов под ключ. Помощь в подборе участка. Екатеринбург
Проектирование и строительство коттеджей под ключ. Помощь в подборе участка. Екатеринбург
Проектирование и строительство частных домов под ключ. Помощь в подборе участка. Екатеринбург
Строительство домов по вашему эскизу. Под ключ! Помощь в подборе участка. Екатеринбург
Семейная ипотека на строительство дома. Ставка от 6%. Помощь в подборе участка. Екатеринбург
Проектирование и строительство частных домов под ключ. Помощь в подборе участка. Екатеринбург
Строительство каркасных домов в Свердловской области. Помощь в подборе участка. Екатеринбург
Строительство домов по вашему эскизу. Под ключ! Помощь в подборе участка. Екатеринбург
Купить дом под семейную ипотеку с эскроу, ставка от 6%. Помощь в подборе участка. Екатеринбург
Купить дом под сельскую ипотеку со ставкой от 3%. Екатеринбург
Купить дом под семейную ипотеку с эскроу, ставка от 6%. Помощь в подборе участка. Екатеринбург
Семейная ипотека на строительство дома. Ставка от 6%. Помощь в подборе участка. Екатеринбург
Барнхаусы под ключ в Свердловской области. Екатеринбург
Проектирование и строительство частных домов под ключ. Помощь в подборе участка. Екатеринбург
Строительство домов по вашему эскизу. Под ключ! Помощь в подборе участка. Екатеринбург
Проектирование и строительство частных домов под ключ. Помощь в подборе участка. Екатеринбург
Строительство домов по вашему эскизу. Под ключ! Помощь в подборе участка. Екатеринбург
Проектирование и строительство частных домов под ключ. Помощь в подборе участка. Екатеринбург
Строительство частных домов под ключ. Помощь в подборе участка. Индивидуальные проекты. Екатеринбург
Строительство домов под ключ в Свердловской области. Помощь в подборе участка. Екатеринбург
Проектирование и строительство домов из газоблока. Екатеринбург
Закажите частный дом под ключ! Расчёт цен на сайте. С доставкой на участок. Екатеринбург
Семейная ипотека на строительство дома. Ставка от 6%. Помощь в подборе участка. Екатеринбург
Строительство домов под семейную ипотеку. До 6 млн. Помощь в подборе участка. Екатеринбург
Семейная ипотека на строительство дома. Ставка от 6%. Помощь в подборе участка. Екатеринбург
Строительство частных домов под ключ. Екатеринбург
Проектирование и строительство каркасных домов под ключ. Помощь в подборе участка. Екатеринбург
Строительство каркасных домов под ключ от 2,5 млн руб. Помощь в подборе участка. Екатеринбург
Строительство домов под ключ в Свердловской области. Екатеринбург
Проектирование и строительство частных домов под ключ. Помощь в подборе участка. Екатеринбург
Строительство домов по вашему эскизу. Под ключ! Помощь в подборе участка. Екатеринбург
Скидка от 50% до 100% на доставку! Бани
Проектирование и строительство частных домов под ключ. Помощь в подборе участка. Екатеринбург
Построим частный дом под ключ. Цены на любой бюджет! С доставкой на участок. Екатеринбург
Строительство домов из газоблока в Свердловской области. Екатеринбург
Дома из газоблока под ключ в Свердловской области. Екатеринбург
Закажите частный дом под ключ! Расчёт цен на сайте. С доставкой на участок. Екатеринбург
Строительство домов под ключ в Екб и СО. Цены на любой бюджет! С доставкой на участок. Екатеринбург
Барнхаусы под ключ в Свердловской области. Екатеринбург
Строительство барнхаусов под ключ от 2 млн руб. Екатеринбург
Строительство домов по вашему эскизу. Под ключ! Екатеринбург
Проектирование и строительство частных домов под ключ. Помощь в подборе участка. Екатеринбург
Строительство домов по вашему эскизу. Под ключ! Помощь в подборе участка. Екатеринбург
Купить барнхаус под ключ от 2 000 000 рублей. Екатеринбург
Построим частный дом под ключ. Цены на любой бюджет! С доставкой на участок. Екатеринбург
Купить барнхаус под ключ от 2 000 000 рублей. Екатеринбург
Строительство коттеджей под ключ. Фиксация сметы! Помощь в подборе участка. Екатеринбург
Проектирование и строительство коттеджей под ключ. Помощь в подборе участка. Екатеринбург
Проектирование и строительство частных домов под ключ. Помощь в подборе участка. Екатеринбург
Скидка от 50% до 100% на доставку! Бани
Строительство частных домов под ключ. Помощь в подборе участка. Индивидуальные проекты. Екатеринбург
Строительство домов по вашему эскизу. Под ключ! Помощь в подборе участка. Екатеринбург
Проектирование и строительство частных домов под ключ. Екатеринбург
Строительство каркасных бань «под ключ». Собственное производство. Индивидуальные проекты. Екатеринбург
Купить каркасную баню от 430 000 рублей «под ключ». Собственное производство. Екатеринбург
Строительство домов по вашему эскизу. Под ключ! Помощь в подборе участка. Екатеринбург
Строительство домов под ключ в Свердловской области. Помощь в подборе участка. Екатеринбург
Строительство частных домов под ключ. Екатеринбург
Барнхаусы под ключ в Свердловской области. Екатеринбург
Барнхаусы под ключ в Свердловской области. Екатеринбург
Купить барнхаус под ключ от 2 000 000 рублей. Екатеринбург
Строительство домов под ключ в Свердловской области. Екатеринбург
Строительство домов под ключ в Свердловской области. Екатеринбург
Строительство домов по вашему эскизу. Под ключ! Помощь в подборе участка. Екатеринбург
Проектирование и строительство частных домов под ключ. Помощь в подборе участка. Екатеринбург
Строительство частных домов под ключ. Помощь в подборе участка. Индивидуальные проекты. Екатеринбург
Дома из газоблока под ключ в Свердловской области. Екатеринбург
Проектирование и строительство частных домов под ключ. Помощь в подборе участка. Екатеринбург
Проектирование и строительство частных домов под ключ. Помощь в подборе участка. Екатеринбург
Строительство домов под ключ в Свердловской области. Помощь в подборе участка. Екатеринбург
Строительство индивидуальных жилых домов. Под ключ! Помощь в подборе участка. Екатеринбург
Строительство домов под ключ в Свердловской области. Помощь в подборе участка. Екатеринбург
Строительство домов по вашему эскизу. Под ключ! Помощь в подборе участка. Екатеринбург
Проектирование и строительство частных домов под ключ. Помощь в подборе участка. Екатеринбург
Септик в подарок! Евролос ЭКО 3
Проектирование и строительство частных домов под ключ. Екатеринбург
Барнхаусы под ключ в Свердловской области. Екатеринбург
Строительство частных домов в Каменск-Уральске. Помощь в подборе участка. Екатеринбург
Строительство домов по вашему эскизу. Под ключ! Помощь в подборе участка. Екатеринбург
Строительство частных домов под ключ. Помощь в подборе участка. Индивидуальные проекты. Екатеринбург
Строительство домов по вашему эскизу. Под ключ! Помощь в подборе участка. Екатеринбург
Барнхаусы под ключ в Свердловской области. Екатеринбург
Закажите частный дом под ключ! Расчёт цен на сайте. С доставкой на участок. Екатеринбург
Построим частный дом под ключ. Цены на любой бюджет! С доставкой на участок. Екатеринбург
Строим дома из каталога и по эскизу. Можно в ипотеку. Сотрудничаем с ДомРФ. Екатеринбург
Барнхаусы под ключ в Свердловской области. Екатеринбург
Строительство домов под ключ в Свердловской области. Помощь в подборе участка. Екатеринбург
Проектирование и строительство частных домов под ключ. Помощь в подборе участка. Екатеринбург
Построим частный дом под ключ. Цены на любой бюджет! С доставкой на участок. Екатеринбург
Проектирование и строительство частных домов под ключ. Помощь в подборе участка. Екатеринбург
Строительство домов под ключ в Свердловской области. Екатеринбург
Строительство домов из газоблока под ключ 3,5 млн руб. Помощь в подборе участка. Екатеринбург
Строительство частных домов под ключ. Помощь в подборе участка. Индивидуальные проекты. Екатеринбург
Строительство дачных домов под ключ. Помощь в подборе участка. Индивидуальные проекты. Екатеринбург
Строительство дачных домов под ключ. Фиксация сметы! Помощь в подборе участка. Екатеринбург
Строительство каркасных домов под ключ от 2,5 млн руб. Помощь в подборе участка. Екатеринбург
Строительство каркасных домов в Свердловской области. Помощь в подборе участка. Екатеринбург
Строительство дачных домов под ключ. Фиксация сметы! Помощь в подборе участка. Екатеринбург
Строительство дачных домов под ключ. Помощь в подборе участка. Индивидуальные проекты. Екатеринбург
Строительство домов под ключ в Свердловской области. Помощь в подборе участка. Екатеринбург
Проектирование и строительство частных домов под ключ. Помощь в подборе участка. Екатеринбург
Строительство садовых домов под ключ. Фиксация сметы! Помощь в подборе участка. Екатеринбург
Строительство жилого дома под ИЖС в Свердловской области. Помощь в подборе участка. Екатеринбург
Проектирование и строительство садовых домов под ключ. Помощь в подборе участка. Екатеринбург
Строительство домов из газоблока в Свердловской области. Помощь в подборе участка. Екатеринбург
Проектирование и строительство домов из газоблока. Помощь в подборе участка. Екатеринбург
Проектирование и строительство частных домов под ключ. Помощь в подборе участка. Екатеринбург
Строительство каркасных домов в ЕКБ под ключ. От производителя за 60 дней. СП 31-105-2002. Екатеринбург
Проектирование и строительство садовых домов под ключ. Помощь в подборе участка. Екатеринбург
Проектирование и строительство частных домов под ключ. Помощь в подборе участка. Екатеринбург
Строительство домов под ключ в Свердловской области. Помощь в подборе участка. Екатеринбург
Проектирование и строительство частных домов под ключ. Помощь в подборе участка. Екатеринбург
Проектирование и строительство садовых домов под ключ. Помощь в подборе участка. Екатеринбург
Барнхаусы под ключ в Свердловской области. Екатеринбург
Закажите частный дом под ключ! Расчёт цен на сайте. С доставкой на участок. Екатеринбург
Построим частный дом под ключ. Цены на любой бюджет! С доставкой на участок. Екатеринбург
Построим частный дом под ключ. Цены на любой бюджет! С доставкой на участок. Екатеринбург
Закажите частный дом под ключ! Расчёт цен на сайте. С доставкой на участок. Екатеринбург
Проектирование и строительство барнхаусов под ключ. Помощь в подборе участка. Екатеринбург
Дома из газоблока под ключ в Свердловской области. Екатеринбург
Строительство домов по вашему эскизу. Под ключ! Екатеринбург
Купить дом под сельскую ипотеку со ставкой от 3%. Екатеринбург
Барнхаусы под ключ в Свердловской области. Екатеринбург
Проектирование и строительство частных домов под ключ. Екатеринбург
Строительство частных домов под ключ. Помощь в подборе участка. Индивидуальные проекты. Екатеринбург
Строительство частных домов под ключ. Помощь в подборе участка. Индивидуальные проекты. Екатеринбург
Строительство частных домов в Свердловской области. Помощь в подборе участка. Екатеринбург
Строительство домов под ключ в Свердловской области. Помощь в подборе участка. Екатеринбург
Каркасная баня "КБ-35
Строим и доставляем бани в беспроцентную рассрочку. Екатеринбург
Мобильная баня «Весна-6»
Строительство домов по вашему эскизу. Под ключ! Помощь в подборе участка. Екатеринбург
Строительство домов под ключ в Свердловской области. Помощь в подборе участка. Екатеринбург
Построим дом или дачу под ключ. Цены на любой бюджет. С доставкой на участок. Екатеринбург
Закажите дом или дачу под ключ! Цены на любой бюджет. С доставкой на участок. Екатеринбург
Строительство барнхаусов под ключ от 2 млн руб. Екатеринбург
Проектирование и строительство частных домов под ключ. Екатеринбург
Строительство домов под ключ в Свердловской области. Екатеринбург
Строительство домов под ключ в Свердловской области. Екатеринбург
Баня деревянная 5х6
Проектирование и строительство частных домов под ключ. Помощь в подборе участка. Екатеринбург
Каркасный дом ДК-135
Баня из бревна 6х6
Проектирование и строительство частных домов под ключ. Помощь в подборе участка. Екатеринбург
Проектирование и строительство частных домов под ключ. Помощь в подборе участка. Екатеринбург
Строительство садовых домов под ключ. Фиксация сметы! Помощь в подборе участка. Екатеринбург
Проектирование и строительство садовых домов под ключ. Помощь в подборе участка. Екатеринбург
Строительство домов из газоблока под ключ 3,5 млн руб. Помощь в подборе участка. Екатеринбург
Строительство домов по вашему эскизу. Под ключ! Помощь в подборе участка. Екатеринбург
Строительство домов под ключ в Свердловской области. Екатеринбург
Проектирование и строительство частных домов под ключ. Екатеринбург
Строительство домов под ключ в Свердловской области. Екатеринбург
Строительство барнхаусов под ключ от 2 млн руб. Екатеринбург
Проектирование и строительство каркасных домов под ключ. Помощь в подборе участка. Екатеринбург
Строительство домов под ключ в Свердловской области. Помощь в подборе участка. Екатеринбург
Строительство домов под ключ в Свердловской области. Екатеринбург
Строительство барнхаусов под ключ от 2 млн руб. Помощь в подборе участка. Екатеринбург
Барнхаусы под ключ в Свердловской области. Екатеринбург
Купить барнхаус под ключ от 2 000 000 рублей. Екатеринбург
Дома из газоблока под ключ в Свердловской области. Екатеринбург
Строительство домов под ключ в Свердловской области. Екатеринбург
Коттеджи, дома и дачи в Екб и СО. Строим быстро - за 2 мес. С доставкой на участок. Екатеринбург
Закажите частный дом под ключ! Расчёт цен на сайте. С доставкой на участок. Екатеринбург
Построим частный дом под ключ. Цены на любой бюджет! С доставкой на участок. Екатеринбург
Семейная ипотека на строительство дома. Ставка от 6%. Помощь в подборе участка. Екатеринбург
Проектирование и строительство частных домов под ключ. Екатеринбург
Закажите частный дом под ключ! Расчёт цен на сайте. С доставкой на участок. Екатеринбург
Построим частный дом под ключ. Цены на любой бюджет! С доставкой на участок. Екатеринбург
Дом из газобетона ГБ-110
Закажите частный дом под ключ! Расчёт цен на сайте. С доставкой на участок. Екатеринбург
Построим частный дом под ключ. Цены на любой бюджет! С доставкой на участок. Екатеринбург
Проектирование и строительство частных домов под ключ. Помощь в подборе участка. Екатеринбург
Строительство частных домов под ключ. Помощь в подборе участка. Индивидуальные проекты. Екатеринбург
Строительство домов под ключ в Свердловской области. Помощь в подборе участка. Екатеринбург
Строительство садовых домов под ключ. Фиксация сметы! Помощь в подборе участка. Екатеринбург
Строительство дачных домов под ключ. Фиксация сметы! Помощь в подборе участка. Екатеринбург
Строительство домов под ключ в Свердловской области. Помощь в подборе участка. Екатеринбург
Строительство дачных домов под ключ. Помощь в подборе участка. Индивидуальные проекты. Екатеринбург
Закажите частный дом под ключ! Расчёт цен на сайте. С доставкой на участок. Екатеринбург
Закажите частный дом под ключ! Расчёт цен на сайте. С доставкой на участок. Екатеринбург
Построим частный дом под ключ. Цены на любой бюджет! С доставкой на участок. Екатеринбург
Построим частный дом под ключ. Цены на любой бюджет! С доставкой на участок. Екатеринбург
Большой выбор недорогих домов. Строим в Екб и Области. С доставкой на участок. Екатеринбург
Закажите частный дом под ключ! Расчёт цен на сайте. С доставкой на участок. Екатеринбург
Дома для постоянного проживания. Цены на любой бюджет. С доставкой на участок. Екатеринбург
Строительство домов под семейную ипотеку. До 6 млн. Помощь в подборе участка. Екатеринбург
Семейная ипотека на строительство дома. Ставка от 6%. Помощь в подборе участка. Екатеринбург
Построим частный дом под ключ. Цены на любой бюджет! С доставкой на участок. Екатеринбург
Построим частный дом под ключ. Цены на любой бюджет! С доставкой на участок. Екатеринбург
Закажите частный дом под ключ! Расчёт цен на сайте. С доставкой на участок. Екатеринбург
Закажите частный дом под ключ! Расчёт цен на сайте. С доставкой на участок. Екатеринбург
Строительство домов под ключ в Свердловской области. Екатеринбург
Построим частный дом под ключ. Цены на любой бюджет! С доставкой на участок. Екатеринбург
Строим дома из каталога и по эскизу. Можно в ипотеку. Сотрудничаем с ДомРФ. Екатеринбург
Большой выбор недорогих домов. Строим в Екб и Области. С доставкой на участок. Екатеринбург
Строительство частных домов под ключ. Екатеринбург
Строительство домов по вашему эскизу. Под ключ! Помощь в подборе участка. Екатеринбург
Проектирование и строительство частных домов под ключ. Помощь в подборе участка. Екатеринбург
Строительство частных домов под ключ. Помощь в подборе участка. Индивидуальные проекты. Екатеринбург
Построим частный дом под ключ. Цены на любой бюджет! С доставкой на участок. Екатеринбург
Построим частный дом под ключ. Цены на любой бюджет! С доставкой на участок. Екатеринбург
Закажите частный дом под ключ! Расчёт цен на сайте. С доставкой на участок. Екатеринбург
Разработка проектов домов. Проект от нас в подарок! С доставкой на участок. Екатеринбург
Строительство барнхаусов в Свердловской области. Екатеринбург
Закажите частный дом под ключ! Расчёт цен на сайте. С доставкой на участок. Екатеринбург
Построим частный дом под ключ. Цены на любой бюджет! С доставкой на участок. Екатеринбург
Барнхаусы под ключ в Свердловской области. Екатеринбург
Купить барнхаус под ключ от 2 000 000 рублей. Екатеринбург
Закажите частный дом под ключ! Расчёт цен на сайте. С доставкой на участок. Екатеринбург
Дома из газоблока под ключ в Свердловской области. Екатеринбург
Строительство домов по эскизу в Свердловской области. Екатеринбург
Закажите частный дом под ключ! Расчёт цен на сайте. С доставкой на участок. Екатеринбург
Построим частный дом под ключ. Цены на любой бюджет! С доставкой на участок. Екатеринбург
Строительство частных домов под ключ. Екатеринбург
Строительство частных домов под ключ. Екатеринбург
Построим частный дом под ключ. Цены на любой бюджет! С доставкой на участок. Екатеринбург
Закажите частный дом под ключ! Расчёт цен на сайте. С доставкой на участок. Екатеринбург
Построим частный дом под ключ. Цены на любой бюджет! С доставкой на участок. Екатеринбург
Проект и монтаж дома под ключ! Цены на любой бюджет. С доставкой на участок. Екатеринбург
Проектирование и строительство частных домов под ключ. Помощь в подборе участка. Екатеринбург
Закажите частный дом под ключ! Расчёт цен на сайте. С доставкой на участок. Екатеринбург
Построим частный дом под ключ. Цены на любой бюджет! С доставкой на участок. Екатеринбург
Проектирование и строительство частных домов под ключ. Екатеринбург
Строительство домов под ключ в Свердловской области. Екатеринбург
Каркасный дом ДК-88 (Копировать)
Строительство домов по вашему эскизу. Под ключ! Помощь в подборе участка. Екатеринбург
Проектирование и строительство частных домов под ключ. Помощь в подборе участка. Екатеринбург
Семейная ипотека на строительство дома. Ставка от 6%. Помощь в подборе участка. Екатеринбург
Строительство частных домов под ключ. Помощь в подборе участка. Индивидуальные проекты. Екатеринбург
Строительство частных домов под ключ. Екатеринбург
Закажите частный дом под ключ! Расчёт цен на сайте. С доставкой на участок. Екатеринбург
Построим частный дом под ключ. Цены на любой бюджет! С доставкой на участок. Екатеринбург
Дом из газобетона ГБ-156
Скидка от 50% до 100% на доставку! Бани
Квадро - бани 2,2х2,2 м, сосна, гибкая черепица, Екб
Строительство домов из газоблока под ключ 3,5 млн руб. Помощь в подборе участка. Екатеринбург
Строительство домов из газоблока в Свердловской области. Помощь в подборе участка. Екатеринбург
Построим и доставим баню в ваш город этой зимой. Екатеринбург
Купить дом под сельскую ипотеку со ставкой от 3%. Екатеринбург
Строительство домов под семейную ипотеку. Взнос от 20%. Помощь в подборе участка. Екатеринбург
Купить дом под семейную ипотеку с эскроу, ставка от 6%. Помощь в подборе участка. Екатеринбург
Проектирование и строительство частных домов под ключ. Помощь в подборе участка. Екатеринбург
Строительство дачных домов под ключ. Помощь в подборе участка. Индивидуальные проекты. Екатеринбург
Строительство частных домов под ключ. Помощь в подборе участка. Индивидуальные проекты. Екатеринбург
Строительство дачных домов под ключ. Фиксация сметы! Помощь в подборе участка. Екатеринбург
Закажите частный дом под ключ! Расчёт цен на сайте. С доставкой на участок. Екатеринбург
Мобильная баня «Весна-6»
Проектирование и строительство частных домов под ключ. Помощь в подборе участка. Екатеринбург
Купить дом под сельскую ипотеку со ставкой от 3%. Екатеринбург
Построим частный дом под ключ. Цены на любой бюджет! С доставкой на участок. Екатеринбург
Проектирование и строительство коттеджей под ключ. Помощь в подборе участка. Екатеринбург
Строительство коттеджей под ключ. Помощь в подборе участка. Индивидуальные проекты. Екатеринбург
Строительство домов по вашему эскизу. Под ключ! Помощь в подборе участка. Екатеринбург
Дома для постоянного проживания. Цены на любой бюджет. С доставкой на участок. Екатеринбург
Проектирование и строительство каркасных домов под ключ. Помощь в подборе участка. Екатеринбург
Строительство каркасных домов под ключ от 2,5 млн руб. Помощь в подборе участка. Екатеринбург
Проектирование и строительство домов из газоблока. Помощь в подборе участка. Екатеринбург
Строительство домов из газоблока в Свердловской области. Помощь в подборе участка. Екатеринбург
Построим и доставим баню-бочку этой зимой. Екатеринбург
Проектирование и строительство частных домов под ключ. Помощь в подборе участка. Екатеринбург
Баня «Теплодина-5 с верандой»
Строительство частных домов под ключ. Помощь в подборе участка. Индивидуальные проекты. Екатеринбург
Мобильная баня «Теплодина-4»
Каркасные дома под ключ в ЕКБ. От производителя за 60 дней. СП 31-105-2002. Рассрочка 0%. Екатеринбург
Купить дом под сельскую ипотеку со ставкой от 3%. Екатеринбург
Проектирование домов под ключ. Расчёт цен на сайте! С доставкой на участок. Екатеринбург
Построим частный дом под ключ. Цены на любой бюджет! С доставкой на участок. Екатеринбург
Закажите частный дом под ключ! Расчёт цен на сайте. С доставкой на участок. Екатеринбург
Закажите частный дом под ключ! Расчёт цен на сайте. С доставкой на участок. Екатеринбург
Построим частный дом под ключ. Цены на любой бюджет! С доставкой на участок. Екатеринбург
Купить дом под сельскую ипотеку со ставкой от 3%. Екатеринбург
Строим и доставляем бани в беспроцентную рассрочку. Екатеринбург
Построим частный дом под ключ. Цены на любой бюджет! С доставкой на участок. Екатеринбург
Закажите частный дом под ключ! Расчёт цен на сайте. С доставкой на участок. Екатеринбург
Строительство домов в Екб и СО. В ипотеку или рассрочку. Сотрудничаем с ДомРФ. Екатеринбург
Строительство домов по вашему эскизу. Под ключ! Помощь в подборе участка. Екатеринбург
Строительство барнхаусов под ключ от 2 млн руб. Екатеринбург
Проектирование и строительство частных домов под ключ. Помощь в подборе участка. Екатеринбург
Барнхаусы под ключ в Свердловской области. Екатеринбург
Проект и монтаж дома под ключ! Цены на любой бюджет. С доставкой на участок. Екатеринбург
Разработка проектов домов. Проект от нас в подарок! С доставкой на участок. Екатеринбург
Построим дом недорого и под ключ! В Екб и Области. С доставкой на участок. Екатеринбург
Закажите частный дом под ключ! Расчёт цен на сайте. С доставкой на участок. Екатеринбург
Бани под ключ от производителя. Поэтапная оплата. Индивидуальный проект. Екатеринбург
Построим частный дом под ключ. Цены на любой бюджет! С доставкой на участок. Екатеринбург
Проект и монтаж дома под ключ! Цены на любой бюджет. С доставкой на участок. Екатеринбург
Строительство домов под ключ в Екб и СО. Итоговые цены на сайте! С доставкой на участок. Екатеринбург
Закажите частный дом под ключ! Расчёт цен на сайте. С доставкой на участок. Екатеринбург
Построим частный дом под ключ. Цены на любой бюджет! С доставкой на участок. Екатеринбург
Строительство домов под ключ в Екб и СО. Цены на любой бюджет! С доставкой на участок. Екатеринбург
Большой выбор недорогих домов. Строим в Екб и Области. С доставкой на участок. Екатеринбург
Похожие товары