Новости
11 Мая 2023

Вступайте в нашу группу и будьте в курсе всех новостей и вкусных предложений!

15 Февраля 2023

Кажется, зачем ломать готовый дом, дешевле его отремонтировать и перестроить. Действительно ли это так?

Посмотреть все

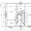
Каркасный дом 6х8 с мансардой, село Фомино (Сысертский р-н)

Главная » Каталог объектов » Каркасные дома и бани » Каркасный дом 6х8 с мансардой
Дом № 48, Фомино (Сысертский район)
Площадь дома:
86м2
Размер дома:
6м х 8м
Этажность:
2 этажа
Дополнительно:
полноценный мансардный этаж 40м²; крыльцо 1м х 1.3м с перилами и кровлей
Срок строительства:
4 недели
Гарантия:
36 месяцев
2 800 000 р.
Купить
ОписаниеОтзывы

Комплектация дома 6х8 с мансардным этажом

  • Температурный режим: круглогодичное проживание;
  • Срок строительства 4 недели;
  • Фундамент: винтовые сваи 2500/6/200/89 мм, 16шт;
  • Этажность: мансардный этаж 40м²;
  • Каркас стен: высота 2500 мм, толщина 150 мм; доска 50х150 мм, ригеля, укосины;
  • Утеплитель: минеральная вата ТеплоKNAUF для Коттеджа 036;
  • Наружная обшивка стен: имитация бруса 135 мм сосна, сорт АБ;
  • Внутренняя обшивка стен: евровагонка сосна, сорт АВ;
  • Настил пола: доска пола 28 мм сосна;
  • Кровля: двухскатная ломаная металлочерепица Мотеррей 0.45 цвет «шоколад»;
  • Окна: 6шт — профиль REHAU 5 камерный, стеклопакет 2 камерный, подоконник, слив, откосы, обналичка, антимоскитная сетка;
  • Двери: дверь входная — сейф Torex, межкомнатные — филенчатые;
  • Дополнительно: крыльцо 1м х 1.3м с перилами и кровлей

Если Вам понравился этот дом, смело отправляйте его в корзину и мы свяжемся для обсуждения деталей. Если же хотелось бы внести некоторые изменения, это тоже легко выполнимо, ведь все наши дома - индивидуальны.

Оставляйте свои контакты, мы перезвоним, либо набирайте сами. Договоримся о встрече, обсудим проект, обязательно учтем все Ваши пожелания и впишем их в бюджет по максимуму.

Полезно также почитать:

Похожие товары
Остались вопросы? Мы перезвоним!
Контакты

ул.Сибирский тракт 8б оф.130
+7 (343) 201-98-59 по домам

+7 (343) 200-98-59 по балконам

 +7 (902) 874-35-34

Обратный звонок

Данный сайт использует файлы cookie и прочие похожие технологии. В том числе, мы обрабатываем Ваш IP-адрес для определения региона местоположения. Используя данный сайт, вы подтверждаете свое согласие с политикой конфиденциальности сайта.
OK