Новости
11 Мая 2023

Вступайте в нашу группу и будьте в курсе всех новостей и вкусных предложений!

15 Февраля 2023

Кажется, зачем ломать готовый дом, дешевле его отремонтировать и перестроить. Действительно ли это так?

Посмотреть все

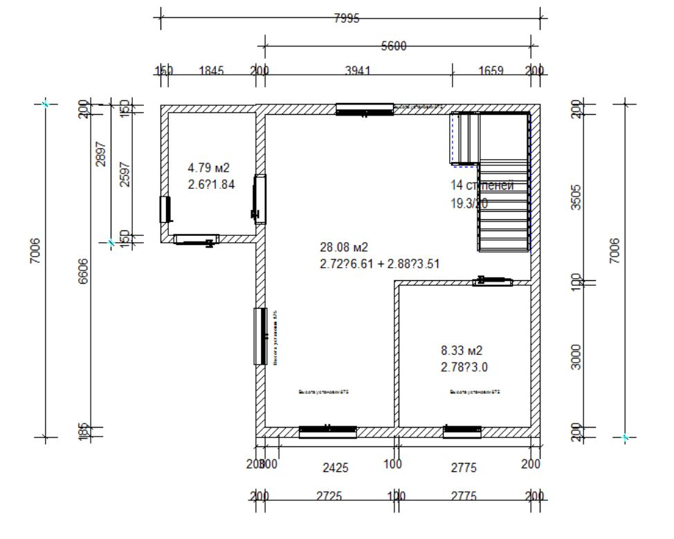
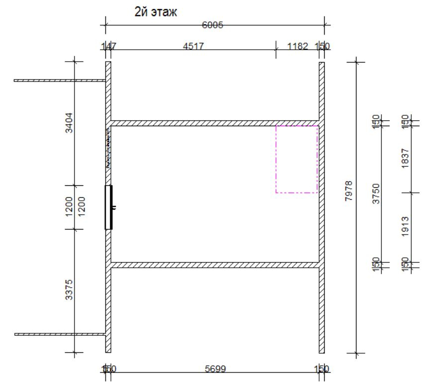
Каркасный дом 6х7 с утепленным тамбуром и открытой верандой, сад №51 (г.В.Пышма)

Дом № 41, г. В.Пышма, сад№51
Площадь дома:
66м2
Размер дома:
6м х 7м
Этажность:
мансардный этаж 4м х 6м
Дополнительно:
тамбур + веранда 2х7м
Срок строительства:
3 недели
Гарантия:
36 месяцев
2 050 000 р.
Купить
ОписаниеОтзывы

Комплектация Каркасного дома 6х7м с тамбуром 2х3м  и верандой 2х4м

  • Температурный режим: круглогодичное проживание;
  • Срок строительства 3 недели;
  • Фундамент: винтовые сваи 2500/6/200/89 мм;
  • Этажность: мансардный этаж 4х6м;
  • Каркас стен: высота 2500 мм, толщина 200 мм; доска 50х200 мм;
  • Утеплитель: плита минераловатная Knauf Insulation Aquastatik TS037;
  • Наружная обшивка стен: имитация бруса 135 мм сосна, сорт АБ;
  • Внутренняя обшивка стен: лист ГКЛ влагостойкий, 12мм;
  • Настил пола: плита ОСП 3-22 мм; доска пола, сорт АВ;
  • Кровля: двухскатная, металлочерепица Мотеррей 0.45 цвет «шоколад»;
  • Окна 6шт:  профиль REHAU 3-камерный, стеклопакет 2 камерный, подоконник, слив, откосы, обналичка, антимоскитная сетка;
  • Двери: дверь входная — сейф подьездная; межкомнатные - филенчатые
  • Дополнительно: утепленный тамбур 2м х 3м, открытая веранда 2м х 4м

Если Вам понравился этот дом, смело отправляйте его в корзину и мы свяжемся для обсуждения деталей. Если же хотелось бы внести некоторые изменения, это тоже легко выполнимо, ведь все наши дома - индивидуальны.

Оставляйте свои контакты, мы перезвоним, либо набирайте сами. Договоримся о встрече, обсудим проект, обязательно учтем все Ваши пожелания и впишем их в бюджет по максимуму.

Полезно также почитать:

Похожие товары
2 430 000 р.
Купить
1 980 000 р.
Купить
Остались вопросы? Мы перезвоним!
Контакты

ул.Сибирский тракт 8б оф.130
+7 (343) 201-98-59 по домам

+7 (343) 200-98-59 по балконам

 +7 (902) 874-35-34

Обратный звонок

Данный сайт использует файлы cookie и прочие похожие технологии. В том числе, мы обрабатываем Ваш IP-адрес для определения региона местоположения. Используя данный сайт, вы подтверждаете свое согласие с политикой конфиденциальности сайта.
OK