Новости
11 Мая 2023

Вступайте в нашу группу и будьте в курсе всех новостей и вкусных предложений!

15 Февраля 2023

Кажется, зачем ломать готовый дом, дешевле его отремонтировать и перестроить. Действительно ли это так?

Посмотреть все

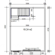
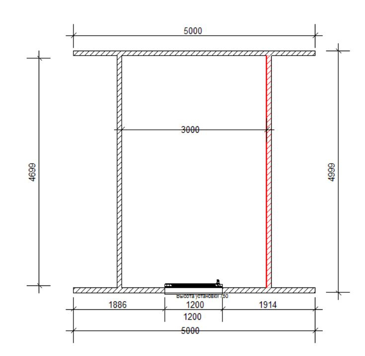
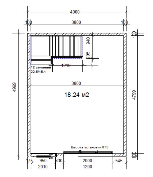
Каркасный дом 4х5м с мансардой 3х5м

Главная » Каталог объектов » Каркасные дома и бани » Каркасный дом 4х5 с мансардой
Дом № 7, СНТ Янтарный ключ
Площадь дома:
35м2
Размер дома:
4м х 5м
Этажность:
мансардный этаж 3м х 5м
Дополнительно:
покрытие лаком
Срок строительства:
3 недели
Гарантия:
36 месяцев
1 250 000 р.
Купить
ОписаниеОтзывы

Комплектация Каркасного дома 4х5м с мансардой и 3х5м 

  • Температурный режим: сезонное проживание до -15°С;
  • Срок строительства 3 недели;
  • Фундамент: винтовые сваи 2500/6/200/89 мм; 9шт;
  • Этажность: мансардный этаж;
  • Каркас стен: высота 2500 мм, толщина 100 мм; доска 50х100 мм;
  • Утеплитель: каменная вата УРСА Terra 34 PN;
  • Наружная обшивка стен: имитация бруса 135 мм сосна, сорт АБ;
  • Внутренняя обшивка стен: плита ОСП-3 9 мм;
  • Настил пола: плита ОСП-3 22 мм;
  • Кровля: двухскатная, профиллированный лист С-21 0.45 цвет «шоколад»;
  • Окно: 2шт — профиль REHAU 3 камерный, стеклопакет 1 камерный, подоконник, слив, откосы, обналичка, антимоскитная сетка;
  • Двери: дверь входная — сейф подъездная;
  • Дополнительно: покрытие фасада защитным ЛКП.

Если Вам понравился этот дом, смело отправляйте его в корзину и мы свяжемся для обсуждения деталей. Если же хотелось бы внести некоторые изменения, это тоже легко выполнимо, ведь все наши дома - индивидуальны.

Оставляйте свои контакты, мы перезвоним, либо набирайте сами. Договоримся о встрече, обсудим проект, обязательно учтем все Ваши пожелания и впишем их в бюджет по максимуму.

Полезно также почитать:

Похожие товары
Остались вопросы? Мы перезвоним!
Контакты

ул.Сибирский тракт 8б оф.130
+7 (343) 201-98-59 по домам

+7 (343) 200-98-59 по балконам

 +7 (902) 874-35-34

Обратный звонок

Данный сайт использует файлы cookie и прочие похожие технологии. В том числе, мы обрабатываем Ваш IP-адрес для определения региона местоположения. Используя данный сайт, вы подтверждаете свое согласие с политикой конфиденциальности сайта.
OK