Новости
11 Мая 2023

Вступайте в нашу группу и будьте в курсе всех новостей и вкусных предложений!

15 Февраля 2023

Кажется, зачем ломать готовый дом, дешевле его отремонтировать и перестроить. Действительно ли это так?

Посмотреть все

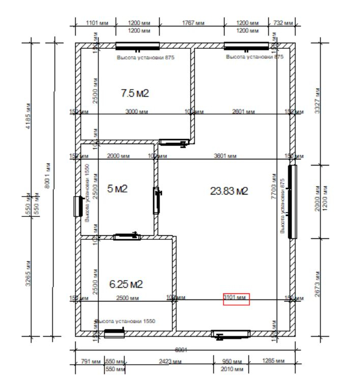
Каркасный дом баня 6х8

Дом № 69,

Дом СНТ Родной (ст.Дружинино)
Производитель: "Сезон96"
Площадь дома:
48 м/кв
Размер дома:
6 на 8 м.
Этажность:
одноэтажный
Срок строительства:
30 рабочих дней
Гарантия:
20 лет
2 105 000 р.
Купить
ОписаниеОтзывы

Комплектация каркасного дома 6 х 7м с мансардой 4 х 7м и крыльцом 1.5 х 4.5м

  • Температурный режим: круглогодичное проживание;
  • Срок строительства 4 недели;
  • Фундамент: винтовые сваи 2500/200/89/6 мм, 16шт;
  • Этажность: мансардный этаж 4х7м;
  • Каркас стен: высота 2500 мм, толщина 150 мм; доска 50х200 мм (оба этажа);
  • Утеплитель: плита минераловатная тепло- и звукоизоляционная KnaufInsulation TS 036 Aquastatik;
  • Наружная обшивка стен: имитация бруса 135 мм сосна, сорт АБ;
  • Внутренняя обшивка стен: евровагонка сосна, сорт АВ;
  • Настил пола: доска пола шпунтованная камерной сушки, сорт АВ;
  • Кровля: двухскатная металлочерепица Мотеррей 0.45 цвет «шоколад»;
  • Окна: 5шт — профиль REHAU 5 камерный, стеклопакет 2 камерный, подоконник, слив, откосы, обналичка, антимоскитная сетка;
  • Двери: дверь входная — сейф подъездная, межкомнатные — филенчатые 4шт;
  • Дополнительно: крыльцо 1.5м х 4.5м с кровлей

Если Вам понравился этот дом, смело отправляйте его в корзину и мы свяжемся для обсуждения деталей. Если же хотелось бы внести некоторые изменения, это тоже легко выполнимо, ведь все наши дома - индивидуальны.

Оставляйте свои контакты, мы перезвоним, либо набирайте сами. Договоримся о встрече, обсудим проект, обязательно учтем все Ваши пожелания и впишем их в бюджет по максимуму.

Полезно также почитать:

Похожие товары
Остались вопросы? Мы перезвоним!
Контакты

ул.Сибирский тракт 8б оф.130
+7 (343) 201-98-59 по домам

+7 (343) 200-98-59 по балконам

 +7 (902) 874-35-34

Обратный звонок

Данный сайт использует файлы cookie и прочие похожие технологии. В том числе, мы обрабатываем Ваш IP-адрес для определения региона местоположения. Используя данный сайт, вы подтверждаете свое согласие с политикой конфиденциальности сайта.
OK